| Площадь общая, м2 | 53.3 |
| Год постройки | 1998 |
|
Характеристика предмета торгов, иные сведения о предмете торгов
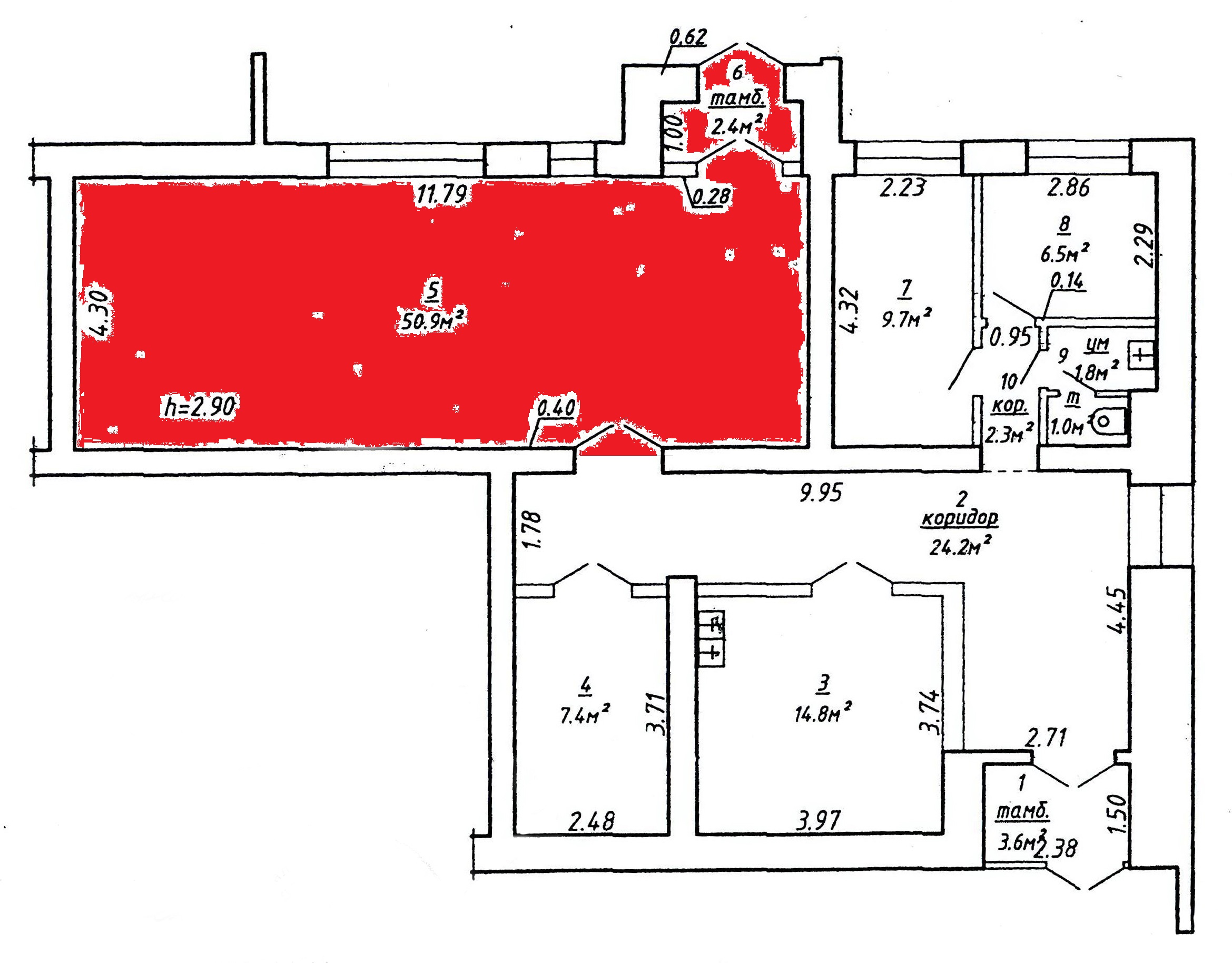
Помещения площадью 50,9 кв.м. и 2,4 кв.м. в изолированном помещении с инв. №200/D-146094 на первом этаже в многоэтажном жилом доме. Централизованное отопление, централизованная система холодного и горячего водоснабжения, электроснабжения и канализации, система автоматической пожарной сигнализации, система охранной сигнализации.
|
|
|
Описание имущества
Право на заключение договора аренды сроком на 3 года помещений площадью 53,3 кв.м. (50,9 кв.м., 2,4 кв.м.), расположенных в изолированном помещении с инв.№200/D-146094 (наименование – помещение нежилое, назначение – помещение неустановленного назначения) по адресу: Витебская обл., г. Витебск, ул. Придорожная, 1/1-31. Целевое использование: для размещения офисов, складских помещений, оказания услуг, организации производства (кроме вредных производств).
|
|
| Изображения имущества |
|
| Документы прилагаемые к имуществу |
|
| Номер решения о сдаче в аренду недвижимого имущества | 1-5-10/4838 |
| Дата решения о сдаче в аренду недвижимого имущества | 05.12.2019 |
| Арендная плата, Размер арендной платы в месяц | 81.07 |
| Арендная плата, Размер коэффициента к базовой ставке арендной платы | 0,5 |
| Срок аренды | 3 года |
| Предполагаемое целевое использование | Для размещения офисов, складских помещений, оказания услуг, организации производства (кроме вредных производств) |
| Форма собственности | коммунальная |
| Собственник имущества | Витебская область |
| Сведения о публикации в газете |
|
| Перечень лиц, которые могут быть допущены к участию в торгах |
|
| Контактное лицо для осмотра | Мельников Юрий Михайлович |
| Телефоны контактного лица | +375295100763 |
| Порядок осмотра предмета торгов | Осмотр предмета торгов предоставляется в рабочие дни с 08.30 до 17.30 по предварительному согласованию с контактным лицом продавца |
| Наименование | Коммунальное консалтинговое унитарное предприятие «Витебский областной центр маркетинга» |
| УНП | 390477566 |
| Контакты | 8 (0212) 24-63-12 |
| Адрес | г.Витебск, проезд Гоголя, 5, |
| Наименование | Коммунальное консалтинговое унитарное предприятие "Витебский областной центр маркетинга" |
| УНП | 390477566 |
| Контактный телефон | +375212246312 |
| Контактный Email | info@etpvit.by |
| Адрес | Республика Беларусь, Витебская область, Витебск, г. Витебск проезд Гоголя, 5 |
| Реквизиты | УНП:390477566, р/с: BY93MTBK30120001093300066782, валюта: BYN в ЗАО "МТБанк" (BIC: 153001117) |
| Наименование | Коммунальное консалтинговое унитарное предприятие «Витебский областной центр маркетинга» |
| УНП | 390477566 |
| Контактный телефон | 8 (0212) 24-63-12, +375 29 514-36-47 |
| Контактный Email | info@marketvit.by |
| Адрес | 210015, Республика Беларусь, г. Витебск, проезд Гоголя, 5 |
|
Порядок и сроки оплаты предмета торгов (включая информацию о возможности предоставления рассрочки по оплате предмета торгов)
Оплата предмета торгов производиться не позднее 3 рабочих дней со дня проведения электронных торгов на расчетный счет Организатора.
|
|
|
Срок подписания договора, оформляемого по результатам электронных торгов
Срок подписания договора аренды недвижимого имущества – не позднее 10 рабочих дней со дня проведения электронных торгов.
|
|
|
Порядок оформления участия в электронных торгах
|
|
|
Перечень представляемых участниками электронных торгов документов и требования к их оформлению
Для участия в электронных торгах лицу, желающему принять участие, необходимо направить электронную заявку на участие в торгах и приложить изображение документа, подтверждающего факт оплаты задатка. Данный документ необходимо прикрепить в лоте в поле «Прикрепить подтверждение оплаты» и ожидать одобрения оператора электронной торговой площадки etpvit.by. После одобрения на электронную почту, указанную при аккредитации на ЭТП приходит уведомление с уникальным кодом участника. |
|
|
Порядок, в соответствии с которым проводятся торги
Электронные торги проводятся в порядке, установленном Постановлением Совета Министров Республики Беларусь от 12.07.2013 N 608 «Об утверждении Положения о порядке проведения электронных торгов» и Регламентом ЭТП. |
|
|
Порядок определения победителя электронных торгов
В ходе торгов участники вносят предложения путем последовательного повышения начальной цены предмета торгов, увеличенной на величину шага торгов. Победителем торгов признается участник, предложивший наибольшую цену за предмет торгов. Если заявление на участие в торгах подано только одним участником или электронную регистрацию прошел только один участник, то предмет торгов продается этому участнику при его согласии на приобретение предмета торгов по начальной цене, увеличенной на 5 процентов. Такое согласие участник подтверждает путем внесения предложения о приобретении предмета торгов на указанных условиях в течение 10 минут со времени начала проведения торгов. Отсутствие данного предложения признаётся отказом от приобретения предмета торгов на предлагаемых условиях. |
|
|
Порядок внесения задатка, реквизиты банковского счета для внесения задатка
Перечисление задатка производится лицом, желающим принять участие в торгах, на расчетный банковский счет оператора электронной торговой площадки не позднее даты и времени окончания приема заявлений на участие в торгах. |
| Определение начальной цены продажи | Определяется организатором |
| Начальная цена права заключения договора аренды, бел.руб. | 225.19 BYN Справочно по курсу НБРБ |
| Начальная стоимость | 225.19 BYN Справочно по курсу НБРБ |
| Сумма задатка для участия | 22.52 BYN Справочно по курсу НБРБ |
| Срок внесения задатка | до 19.03.2020 16:00:00 |
| Порядок внесения задатка | Перечисление задатка производится лицом, желающим принять участие в торгах, на расчетный банковский счет оператора электронной торговой площадки не позднее даты и времени окончания приема заявлений на участие в торгах. |
| Информация о порядке и сроках возмещения затрат | Победитель (претендент на покупку) электронных торгов в течение 3 рабочих дней после проведения электронных торгов обязан возместить затраты на организацию и проведение торгов, процент затрат на обслуживание ЭТП, указанные в протоколе |
| Сумма затрат на организацию и проведение торгов |
Не указано * - окончательная сумма затрат будет известна на следующий день после окончания приема заявок
|
| Процент затрат на обслуживание ЭТП | 2.5% |
| Размер штрафа | 2 700.00 BYN Справочно по курсу НБРБ |
Вам предоставляется возможнсть преобрести лот
№2020.Г.002.00001.1 по начальной цене
Итоговая стоимость имущества составит:
На Ваш адрес электронной почты будет выслано подтверждение о регистрации.
Для восcтановления доступа вам нужно ввести зарегистрированный почтовый адрес. На указанный вами почтовый адрес будет выслана уникальная ссылка для создания нового пароля.