pull-icon
logo-mobile
logo-mobile

Гость

Гостевой доступ

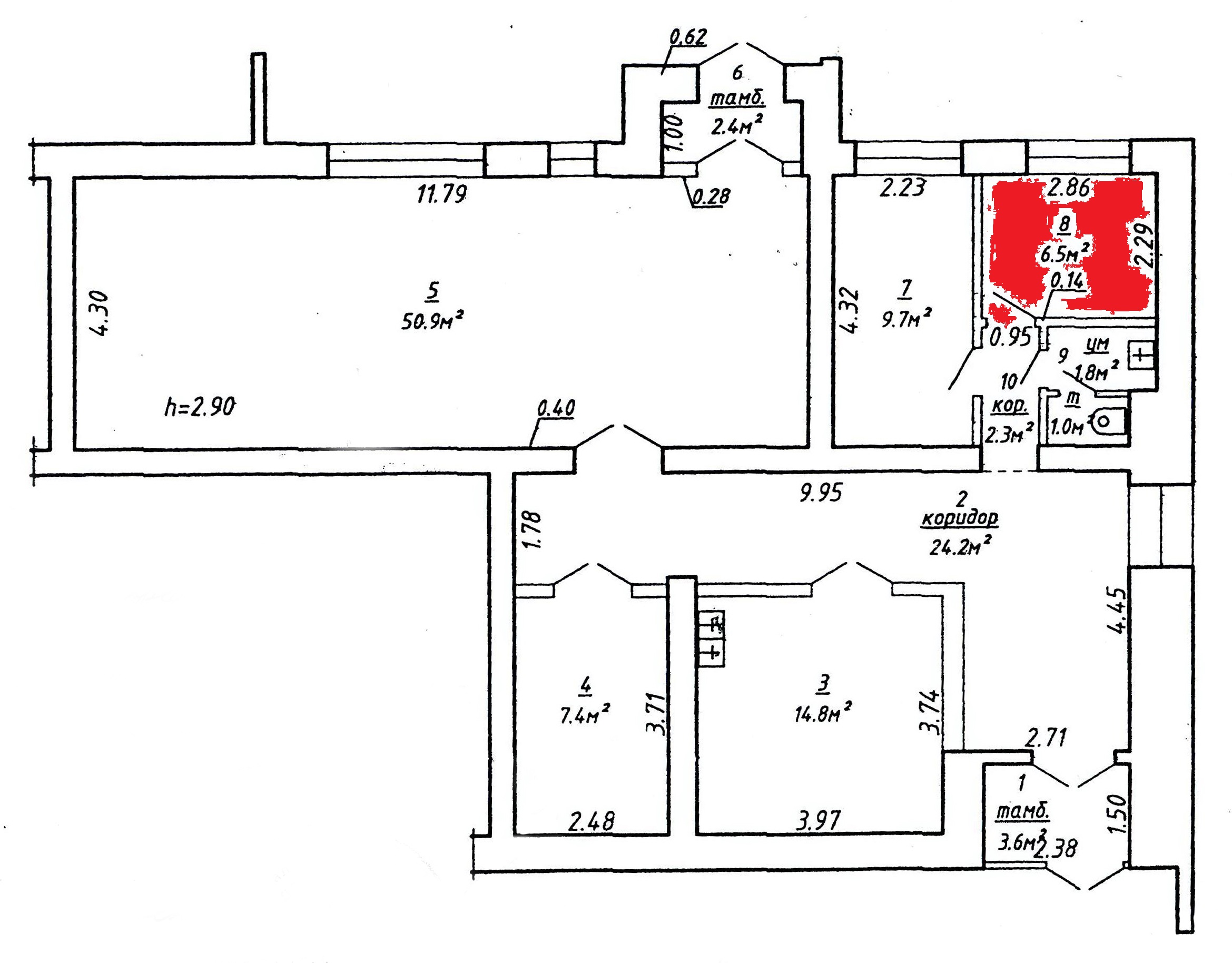
Право на заключение договора аренды сроком на 3 года помещения площадью 6,5 кв. м. по адресу: Витебская обл., г. Витебск, ул. Придорожная, 1/1-31.
Имущество государственной формы собственности Первые торги

Предмет торгов

Площадь общая, м2 6
Год постройки 1998
Характеристика предмета торгов, иные сведения о предмете торгов
Помещение в изолированном помещении с инв. №200/D-146094 на первом этаже в многоэтажном жилом доме. Централизованное отопление, централизованная система холодного и горячего водоснабжения, электроснабжения и канализации, система автоматической пожарной сигнализации, система охранной сигнализации.
Описание имущества
Лот №2. Право на заключение договора аренды сроком на 3 года помещения площадью 6,5 кв. м., расположенного в изолированном помещении с инв.№200/D-146094 (наименование – помещение нежилое, назначение – помещение неустановленного назначения) по адресу: Витебская обл., г. Витебск, ул. Придорожная, 1/1-31. Целевое использование: для размещения офисов, складских помещений, оказания услуг, организации производства (кроме вредных производств).

Загруженные файлы

Изображения имущества
Документы прилагаемые к имуществу

Информация об аренде

Номер решения о сдаче в аренду недвижимого имущества 1-5-10/4838
Дата решения о сдаче в аренду недвижимого имущества 05.12.2019
Арендная плата, Размер арендной платы в месяц 9.89
Арендная плата, Размер коэффициента к базовой ставке арендной платы 0,5
Срок аренды 3 года
Предполагаемое целевое использование Для размещения офисов, складских помещений, оказания услуг, организации производства (кроме вредных производств)

Общая информация

Форма собственности коммунальная
Собственник имущества Витебская область
Сведения о публикации в газете
  • Витебские Вести, планируемая дата публикации 22.02.2020
Перечень лиц, которые могут быть допущены к участию в торгах
  • Индивидуальный предприниматель (резидент)
  • Физическое лицо (не резидент)
  • Физическое лицо (резидент)
  • Юридическое лицо (не резидент)
  • Юридическое лицо (резидент)

Осмотр имущества

Контактное лицо для осмотра Мельников Юрий Михайлович
Телефоны контактного лица +375295100763
Порядок осмотра предмета торгов Осмотр предмета торгов предоставляется в рабочие дни с 08.30 до 17.30 по предварительному согласованию с контактным лицом продавца

Продавец имущества

Наименование Коммунальное консалтинговое унитарное предприятие «Витебский областной центр маркетинга»
УНП 390477566
Контакты 8 (0212) 24-63-12
Адрес г.Витебск, проезд Гоголя, 5,

Организатор торгов

Наименование Коммунальное консалтинговое унитарное предприятие "Витебский областной центр маркетинга"
УНП 390477566
Контактный телефон +375212246312
Контактный Email info@etpvit.by
Адрес Республика Беларусь, Витебская область, Витебск, г. Витебск проезд Гоголя, 5
Реквизиты УНП:390477566, р/с: BY93MTBK30120001093300066782, валюта: BYN в ЗАО "МТБанк" (BIC: 153001117)

Цена / Задаток / Затраты / Штраф

Определение начальной цены продажи Определяется организатором
Начальная цена права заключения договора аренды, бел.руб. 27.46 BYN Справочно по курсу НБРБ
Начальная стоимость 27.46 BYN Справочно по курсу НБРБ
Сумма задатка для участия 2.75 BYN Справочно по курсу НБРБ
Срок внесения задатка до 19.03.2020 16:00:00
Порядок внесения задатка Перечисление задатка производится лицом, желающим принять участие в торгах, на расчетный банковский счет оператора электронной торговой площадки не позднее даты и времени окончания приема заявлений на участие в торгах.
Информация о порядке и сроках возмещения затрат Победитель (претендент на покупку) электронных торгов в течение 3 рабочих дней после проведения электронных торгов обязан возместить затраты на организацию и проведение торгов, процент затрат на обслуживание ЭТП, указанные в протоколе
Сумма затрат на организацию и проведение торгов Не указано
* - окончательная сумма затрат будет известна на следующий день после окончания приема заявок
Процент затрат на обслуживание ЭТП 2.5%
Размер штрафа 2 700.00 BYN Справочно по курсу НБРБ

Вы оказались единственными учатником аукциона

Вам предоставляется возможнсть преобрести лот №2020.Г.002.00001.2 по начальной цене 27.46 BYN плюс 5%.

Итоговая стоимость имущества составит: 28.83 BYN

Согласен приобрести лот Не согласен приобрести лот


Для участия в аукционе вам нужно оплатить задаток в размере 2.75 BYN для участия в аукционе.


Внимание! Вы действительно хотите установить ставку равную 15 000,03 BYN значительно превышающую по отношению к предыдущей на

+10 000,00 BYN


Внимание! Вы действительно хотите установить ставку равную 15 000,03 BYN, значительно превышающую по отношению к предыдущей на

+10 000,00 BYN

Ставка значительно превышает предыдущую ставку. Для подтверждения ставки подтвердите согласие на установку и введите слово "СОГЛАСЕН" в поле ниже:


Подтверждаю, что ознакомлен с условиями и правилами проведениями торгов, а так же с суммой затрат на организацию и проведение торгов, где:

Затраты на организацию и проведение торгов 000,00 BYN

Затраты на обслуживание ЭТП - 2.5% от цены продажи лота





Забыли пароль? Восcтановить доступ к площадке.

На Ваш адрес электронной почты будет выслано подтверждение о регистрации.



Для восcтановления доступа вам нужно ввести зарегистрированный почтовый адрес. На указанный вами почтовый адрес будет выслана уникальная ссылка для создания нового пароля.

Вспомнили? Авторизация