| Характеристика предмета торгов, иные сведения о предмете торгов | Указана в приложенной документации |
|
Описание имущества
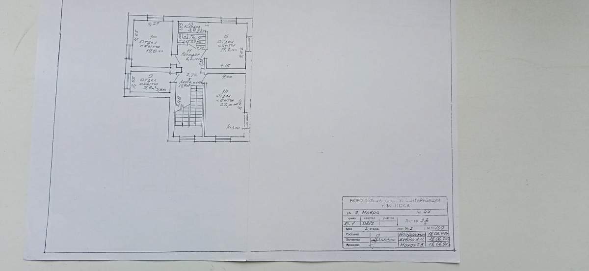
Лот №1. Недвижимое имущество. Информация о предмете торгов, в т.ч. место нахождения:Кап.строение с инв. №500/C-31824, площадью 196,4 кв.м. по адресу: г. Минск, ул. Янки Мавра, 47/27, наименование: грузопроходная, назначение: здание неустановленного назначения. Объект расположен на зем. участке с кадастровым № 500000000006004362 по адресу: г. Минск, ул. Янки Мавра. 47/13 (общее долевое право постоянного пользования). Магазин с инв. № 801. Сооружение, расположенное на земельном участке с кадастровым № 500000000004362, наименование: площадка около грузовой проходной, общ. пл. 1920,8 кв.м., назначение – сооружение специализированное складов, хранилищ, по адресу: г. Минск, ул. Янки Мавра, 47/70. Сооружение наименование: площадка № 8 (Проходная), общ. пл. 601,3 кв.м., назначение – сооружение специализированное складов, хранилищ, по адресу: г. Минск, ул. Янки Мавра, 47/80. Сведения о земельном участке отсутствуют. Сооружения реализовываются без наличия документов, удостоверяющих их государственную регистрацию, а также без изъятия и предоставления земельных участков, на которых они расположены согласно Указу Президента Республики Беларусь от 23 августа 2024 г. № 333 «Об особенностях работы с имуществом неплатежеспособных организаций». |
|
| Изображения имущества |
|
| Документы прилагаемые к имуществу |
|
|
Сведения об обременениях
Дополнительное условие по лоту №1: Покупатель обязан заключить с Продавцом договор купли-продажи на приобретение движимого имущества на общую сумму 279,60 бел.руб. без НДС: вывеска «Бетон» 650*2100 с инв. № 501643 – 1 шт, вывеска магазина с инв. № 501417 – 1 шт, вывеска с объемными буквами и подсветкой с инв. № 500874 – 1 шт, выставочный стенд FOLD UP 3*2 с инв. № 501566 – 1 шт.
|
|
| Сведения о публикации в газете |
|
| Перечень лиц, которые могут быть допущены к участию в торгах |
|
| Контактное лицо для осмотра | Дубина Василий Владимирович |
| Телефоны контактного лица | +375 44 7936323 |
| Порядок осмотра предмета торгов | Дата, время и адрес доступа (ознакомления) с предметом электронных торгов в рабочие дни с 09:00 до 16:00 по предварительному согласованию с Продавцом по месту нахождения имущества. |
| Наименование | открытое акционерное общество Минский завод строительных материалов |
| УНП | 100008102 |
| Контакты | +375 (17) 256-62-39 |
| Адрес | 220015, г. Минск ул. Я.Мавра 47 |
| УНП юридического лица | 191205286 |
| ФИО антикризисного управляющего | Плотников Евгений Владимирович |
| Адрес для корреспонденции | 220015, г. Минск ул. Я.Мавра 47 |
| Контакты управляющего | +375 29 637 73 30, +375 (17) 360-24-99. |
| E-mail управляющего | info2@mzsm.org |
| Наименование | Коммунальное консалтинговое унитарное предприятие "Витебский областной центр маркетинга" |
| УНП | 390477566 |
| Контактный телефон | +375212246312 |
| Контактный Email | info@etpvit.by |
| Адрес | Республика Беларусь, Витебская область, Витебск, г. Витебск проезд Гоголя, 5 |
| Реквизиты | УНП:390477566, р/с: BY93MTBK30120001093300066782, валюта: BYN в ЗАО "МТБанк" (BIC: 153001117) |
| Наименование | Коммунальное консалтинговое унитарное предприятие «Витебский областной центр маркетинга» |
| УНП | 390477566 |
| Контактный телефон | 8 (0212) 24-63-12, +375 29 514-36-47 |
| Контактный Email | info@marketvit.by |
| Адрес | 210015, Республика Беларусь, г. Витебск, проезд Гоголя, 5 |
|
Обязательные условия проведения торгов
Дополнительное условие по лоту №1: Покупатель обязан заключить с Продавцом договор купли-продажи на приобретение движимого имущества на общую сумму 279,60 бел.руб. без НДС: вывеска «Бетон» 650*2100 с инв. № 501643 – 1 шт, вывеска магазина с инв. № 501417 – 1 шт, вывеска с объемными буквами и подсветкой с инв. № 500874 – 1 шт, выставочный стенд FOLD UP 3*2 с инв. № 501566 – 1 шт.
|
|
|
Порядок и сроки оплаты предмета торгов (включая информацию о возможности предоставления рассрочки по оплате предмета торгов)
оплатить стоимость приобретенного имущества не позднее 10 рабочих дней с даты подписания договоров купли-продажи.
|
|
|
Срок подписания договора, оформляемого по результатам электронных торгов
подписать договор купли-продажи предмета электронных торгов и заключить договор купли-продажи движимого имущества в течение 5 (пяти) рабочих дней со дня проведения электронных торгов
|
|
|
Иные обязательства победителя предмета торгов (претендентом на покупку)
Организация и проведение торгов осуществляется в соответствии с Инструкцией о порядке организации и проведения электронных торгов по продаже имущества в процедурах экономической несостоятельности (банкротства), утвержденной постановлением Министерства экономики Республики Беларусь от 1 апреля 2019 г. № 9, на основании п. 2 постановления Министерства экономики Республики Беларусь от 15.05.2023 № 9 «Об утверждении форм протоколов по торгам в процедурах несостоятельности или банкротства», вступившим в силу с 01.10.2023, Указом Президента Республики Беларусь от 23 августа 2024 г. № 333 «Об особенностях работы с имуществом неплатежеспособных организаций».
|
|
|
Порядок оформления участия в электронных торгах
|
|
|
Перечень представляемых участниками электронных торгов документов и требования к их оформлению
Лицо, желающее принять участие в торгах, до окончания срока приема подает оператору ЭТП заявку на участие в электронном аукционе. К заявке прикладывается изображение документа, подтверждающего внесение суммы задатка на текущий (расчетный) банковский счет оператора ЭТП, с отметкой банка. Данный документ необходимо прикрепить в лоте в поле «Прикрепить подтверждение оплаты» и ожидать одобрения оператора электронной торговой площадки etpvit.by.
|
|
|
Порядок, в соответствии с которым проводятся торги
Аукцион проводится в порядке, установленном Законом Республики Беларусь от 13 декабря 2022 г. № 227-З «Об урегулировании неплатежеспособности «Об электронных торгах по продаже имущества в процедурах экономической несостоятельности (банкротства)» и Регламентом ЭТП. |
|
|
Порядок определения победителя электронных торгов
Срок проведения электронного аукциона составляет один день (с 11 до 16 часов). Электронный аукцион проводится методом повышения или понижения начальной цены лота. При отсутствии надбавки к начальной цене лота в течение первого часа проведения электронного аукциона начальная цена лота ежечасно, начиная со второго часа проведения электронного аукциона, снижается равными долями до минимальной цены лота, за исключением случая когда участником электронного аукциона сделана надбавка, то снижение начальной цены лота прекращается. Участник электронного аукциона имеет право сделать отражающую его ценовое предложение надбавку. Такая надбавка должна превысить предыдущую надбавку на установленный шаг электронного аукциона. Победителем электронного аукциона признается участник, предложивший максимальную цену за лот. По истечении срока проведения электронного аукциона электронный аукцион автоматически при помощи программных и технических средств электронной торговой площадки завершается, за исключением следующего случая: Если один из участников электронного аукциона сделает надбавку менее чем за три минуты до его завершения, электронный аукцион продлевается на три минуты с момента подачи этой надбавки, о чем участники электронного аукциона оповещаются при помощи программных и технических средств электронной торговой площадки |
|
|
Порядок внесения задатка, реквизиты банковского счета для внесения задатка
Перечисление задатка производится лицом, желающим принять участие в торгах, на расчетный банковский счет оператора электронной торговой площадки не позднее даты и времени окончания приема заявлений на участие в торгах. Оператор: Коммунальное консалтинговое унитарное предприятие «Витебский областной центр маркетинга» 210015, Республика Беларусь, г. Витебск, проезд Гоголя, 5, Электронный адрес оператора электронной площадки: vcm74@mail.ru |
| Шаг торгов | от начальной цены лота |
| Начальная стоимость | 543 800.00 BYN Справочно по курсу НБРБ |
| Минимальная цена лота | 435 040.00 BYN Справочно по курсу НБРБ |
| Сумма задатка для участия | 54 380.00 BYN Справочно по курсу НБРБ |
| Срок внесения задатка | до 24.12.2025 16:00:00 |
|
Порядок внесения задатка
Задаток должен быть до 16:00 24.12.2025 зачислен на счет коммунального консалтингового унитарного предприятия «Витебский областной центр маркетинга», УНП 390477566, р/с BY93MTBK30120001093300066782 в ЗАО «МТБанк» г.Минск, БИК MTBKBY22, код операции 40901.
|
|
|
Информация о порядке и сроках возмещения затрат
: в течение 5 дней со дня проведения электронных торгов возместить затраты на организацию и проведение электронных торгов, в том числе расходы, связанные с изготовлением и предоставлением участникам электронных торгов документации, необходимой для их проведения, расходов на проведение независимой оценки с оплатой услуг оператора ЭТП, возместить расходы на проведение технической инвентаризации и изготовление технических документов, возместить затраты на услуги по обмерным работам, получение координат периметра и составления плана земельных участков (площадок) в размере 640,00 бел.руб. Расходы Доверителя на проведение независимой оценки – 2955,20 бел.руб. без НДС, на техническую инвентаризацию и изготовление итоговых технических документов – 2066,67 бел.руб. без НДС.
|
|
| Сумма затрат на организацию и проведение торгов |
Не указано * - окончательная сумма затрат будет известна на следующий день после окончания приема заявок
|
| Процент затрат на обслуживание ЭТП | 8% |
| Сумма затрат на обслуживание ЭТП | 43 504.00 BYN Справочно по курсу НБРБ |
| Размер штрафа | 54 380.00 BYN Справочно по курсу НБРБ |
Вам предоставляется возможнсть преобрести лот
№2025.Б.002.00292.1 по начальной цене
Итоговая стоимость имущества составит:
На Ваш адрес электронной почты будет выслано подтверждение о регистрации.
Для восcтановления доступа вам нужно ввести зарегистрированный почтовый адрес. На указанный вами почтовый адрес будет выслана уникальная ссылка для создания нового пароля.